Atradius / Offices
Description
With its dynamic, sculptural design, the new head office of the Atradius insurance bank is a conspicuous eye-catcher along Amsterdam’s Johan Huizingalaan. It is in every respect the architectural answer to the bank’s request for an office with a distinct identity. This identity the building owes not so much to its exterior design, but on the contrary to the remarkable design emanating from within the building.
Especially for this building an innovative office concept was developed that is also directly observable from the outside. To break with the individuality-focused working atmosphere that is so characteristic of the world of insurance banking, the design is based on communication and human contact. ‘Space to meet one another’ was indeed the theme on which the spatial organisation of the plan of requirements was based.
Areas in which employees of different departments can meet one another in an informal atmosphere have been created by arranging a large number of voids – eleven in total – across the building in the form of green atria. These atria, which differ in shape and height, are intended to serve as municipal parks or tree-lined squares. The parks are connected to one another via a welcoming set of stairs, enabling people to follow an interesting route through the entire building. At the main entrance a view penetrating deep into the building provide a clear impression of the building’s spatial layout. Here a broad staircase grants access to the “park route”.
The parks are alternately arranged along the building’s four walls and admit a lot of light into the interior via large transparent glass panels. From outside, the parks are clearly visible behind the glass panels thanks to the green plants they contain and because the pronounced vertical wall grid is interrupted at the parks.
Opting for a relatively ‘deep’ building volume allowed room for voids and an opportunity to design the building to meet the various departments’ demand for space. Superfluous parts of the basic volume – the rectangular box – have been ‘cut away’ to obtain a dynamic crystal shape. As a result, no two floors in the building are the same, which enhances the individual departments’ identities.
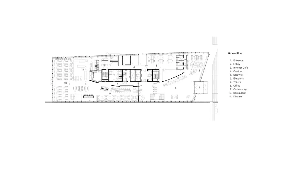
The ground floor and first floor accommodate representative functions such as a reception area, a congress centre, a restaurant and an Internet café. The congress centre and the restaurant are connected via a stairway, enabling the centre to function independently.
The supporting structure of the eleven-storey building comprises a concrete core, steel columns set at a centre-to-centre distance of 3.60 metres along the wall and reinforced concrete floors. A substantial saving in building time was realised by using sliding formwork to build the concrete core.
The building’s complex contours made steel columns an obvious option. Steel readily follows contours and moreover helps create the desired transparent character. At the entrance one corner of the building has been ‘lifted up’, so to speak, via an impressive steel rafter structure.
An aluminium profile system that accentuates the vertical lines was developed specially for the glass wall. Here you see no ribbed profile projecting from the wall plane, but on the contrary a broad aluminium ‘cannelure’ constituting a recess in the glass surface. One cannelure and two aluminium glass profiles are as wide as the column behind them, so that the rhythm of the supporting structure is echoed in the wall. The cannelures are narrower at the double-storey parks, to subdue the impact of the accentuated vertical wall lines and visually break the rigid grid.
Expertise: Architecture
Werk ook slimmer met Galleo
Galleo brengt projectdata, kennis en AI samen in één veilige, schaalbare oplossing. Toonaangevende bedrijven zoals ABT, DWA, CLAFIS en Witteveen+Bos kiezen al voor Galleo. Sluit je aan.
Neem contact op met Barbara of Kars
We werken zelf in de gebouwde omgeving en adviseren je graag, met praktijkervaring en vakkennis, over wat het beste werkt voor jouw organisatie.
Neem contact op